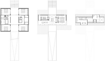
Found on designboom, Villa Geldrop is a charming contemporary home in the beautiful style of Hofman Dujardin Architects, located in The Netherlands. According to the architects, the house is situated at the end of the site next to the existing barn. Through a long cut in the landscape the house is anchored to its environment. Under the ground level the bedrooms are located at this long sectional patio. The large living with dining area, kitchen, study area and playing area are located at the ground level and the 1st floor. Through voids, roof lights and high passages, a tremendous spaciousness is created. The spaces which are located in the axe of the landscape are used for the sublime experience of the landscape. Minimalist and highly elegant, the home feature floor to ceiling windows, allowing a good indoor/outdoor connection. The interior design is highly modern and the rooms are spacious and filled with light.
source: freshome
source: freshome
















No comments:
Post a Comment